Headquarter I.T.S. - Florida/USA

HEADQUARTER I.T.S. - Florida /USA

Wir sind stolz auf unsere erstes Projekt in den USA!!!

Für die I.T.S.-USA (eine international tätige Firma im Bereich von medizinischen Produkten für den chirurgischen Bereich) durften wir das neue Headquarter in Orlando Florida/USA entwerfen.

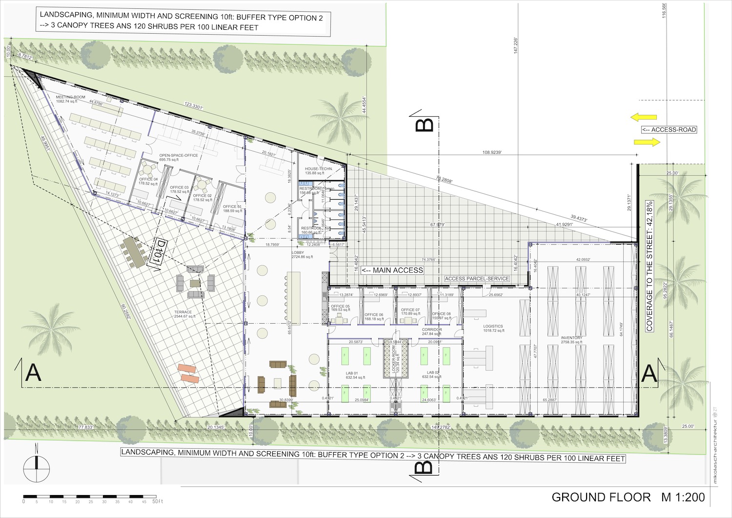
Entstanden ist ein eingeschossiger Gebäudekomplex, mit einem asymmetrischem Dach (hyperbolischer Rhombus) und großzügigen Glasfassade, welcher sich zu einem See hin öffnet.

Auf ca. 2.000m2 Nutzfläche befinden sich neben Logistik- & Verwaltungseinheiten auch Schulungs- & Schauoperationsräume wo Chriurgen im Umgang mit den Produkten und Medizinischen Geräten eingeschult werden.

Standort: Orlando, Florida/USA
Planung 2023


Projektübersicht | Nächstes Projekt